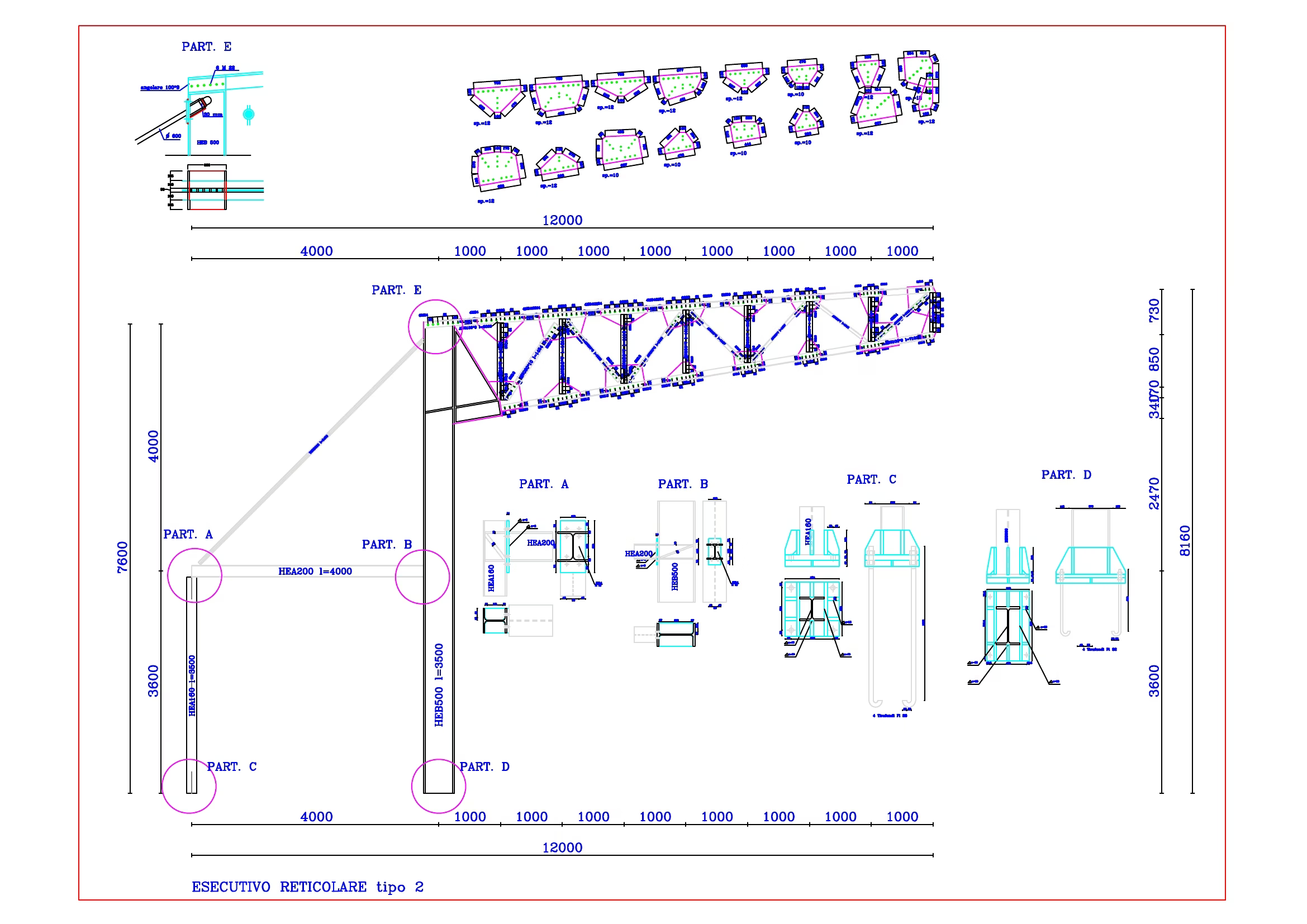
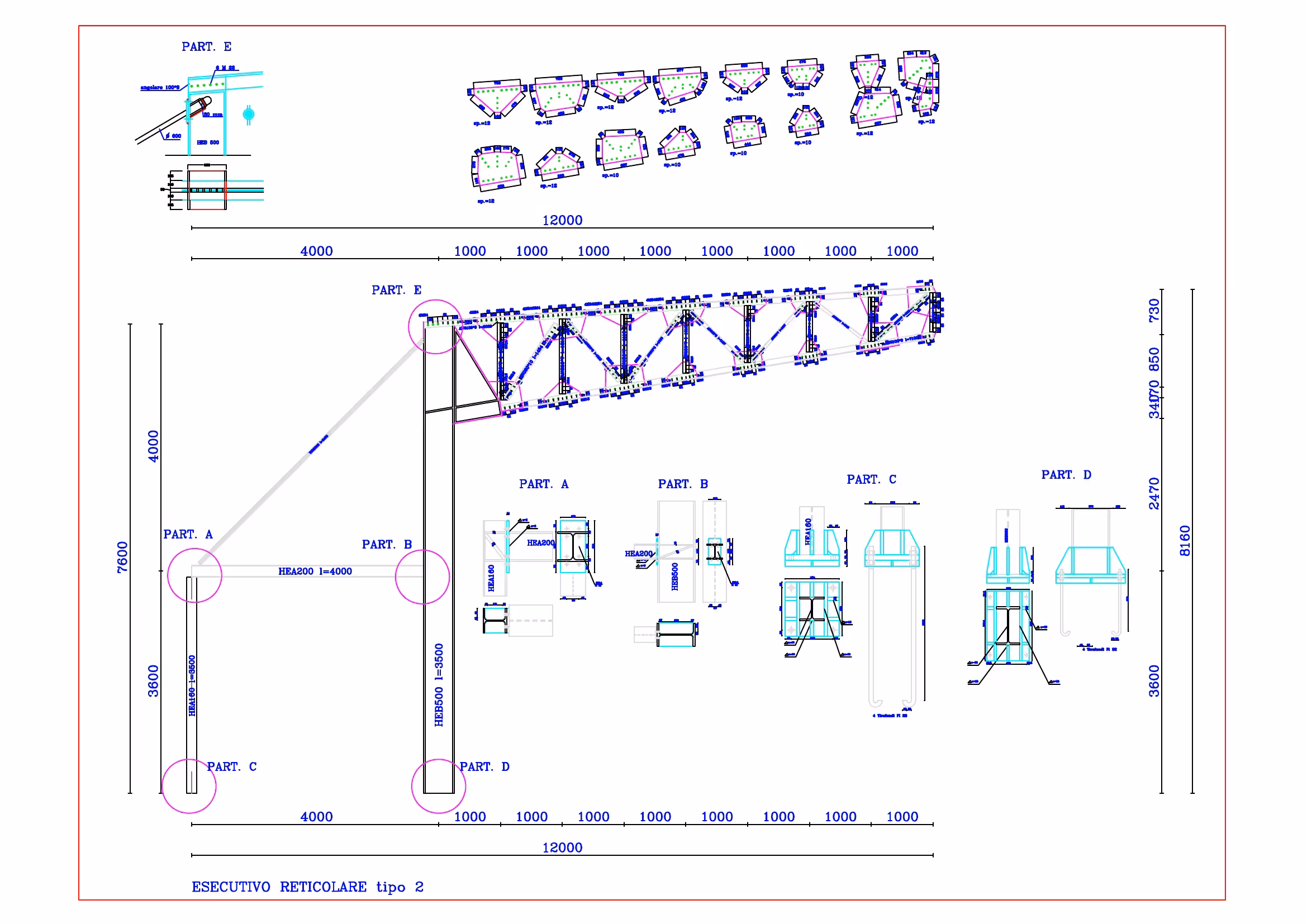
Comune di Siena – Campo sportivo scolastico di Via AvignoneAmpliamento e rifacimento della copertura delle tribuneCon determinazione dirigenziale SC n. 2057 del 22/08/2001, il Comune di Siena ha affidato a DRD i lavori di ampliamento e rifacimento delle tribune del campo sportivo scolastico di Via Avignone.L’intervento ha richiesto la realizzazione di fondazioni complesse e nuove gradonate rivestite in pregiato travertino di Tivoli, lavorazioni affrontate con sicurezza grazie alla consolidata esperienza del geom. Giuseppe Di Paola nelle strutture in cemento armato.Particolarmente impegnativa è stata la costruzione e posa della copertura metallica, che ha richiesto precisione sia in fase di fabbricazione sia nel montaggio in quota. Parallelamente, sono stati riqualificati gli spogliatoi, i servizi igienici e un ampio locale trasformato in palestra.L’opera, conclusa con successo, ha restituito al complesso sportivo funzionalità e un rinnovato decoro, ricevendo anche i complimenti ufficiali dell’Amministrazione Comunale.


Hai un progetto da realizzare?
Con DRD S.r.l. hai al tuo fianco un partner affidabile, che unisce la tradizione dell’edilizia alla precisione della gestione moderna.













.avif)
.avif)
.avif)
.avif)
























