Roma – Quartiere Appio – Ristrutturazione miniappartamento
Dal vecchio magazzino a una casa luminosa e su misura
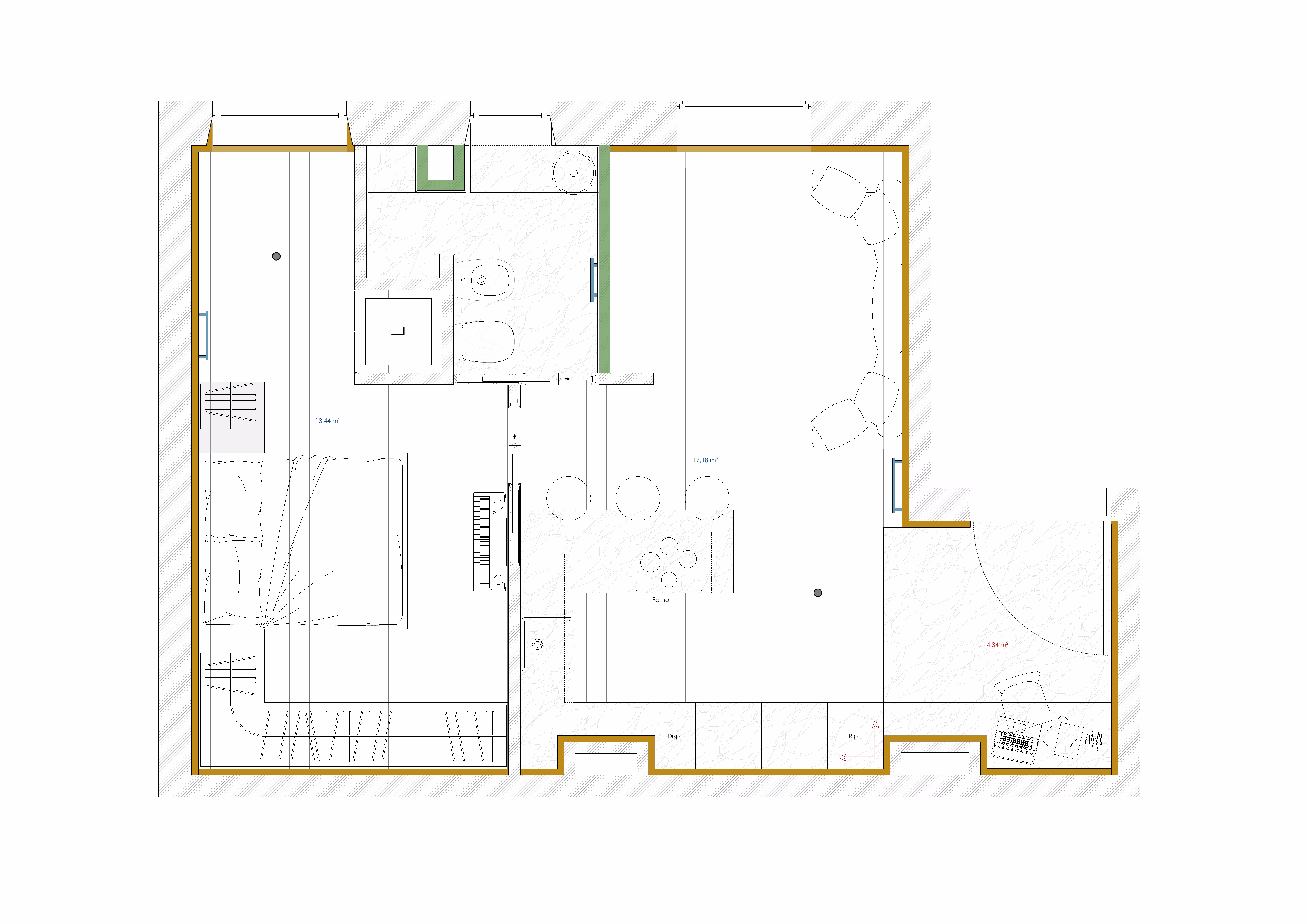
Nel cuore del quartiere Appio, un vecchio magazzino al piano terra di una palazzina di fine Ottocento è stato trasformato in un miniappartamento raffinato e funzionale, pensato per un giovane attore appassionato di ginnastica, bianco puro ed eleganza del marmo.
Le scelte di stile erano chiare fin dall’inizio: ambienti armoniosi, forte dialogo tra materiali e luce, sfruttamento intelligente degli spazi. Alla DRD il compito di dare forma a queste linee guida con un’esecuzione impeccabile e un’attenzione maniacale ai dettagli.
Il cuore della casa è un open space che unisce living e cucina a vista, dove il marmo di Carrara si accosta al calore del rovere naturale spazzolato e trattato a olio. Ogni taglio, ogni giunzione, ogni fuga è stata curata come se fosse un’opera a sé, per esaltare la pulizia dei volumi e la luminosità dell’insieme.
“Quando ci hanno detto che il bianco doveva essere perfetto, abbiamo capito che qui anche una sola pennellata in più poteva fare la differenza.”
Il bagno, rivestito anch’esso in marmo di Carrara, ospita una doccia emozionale con panca ricavata in nicchia: un lavoro di precisione nell’allineamento delle venature e nella posa delle lastre. Nella camera da letto, l’armadio a ponte integra cassettoni e comodini, nascondendo allo stesso tempo volumi tecnici, grazie a un coordinamento accurato con la falegnameria.
Abbiamo inoltre creato una piccola palestra attrezzata e un vano lavanderia a scomparsa, con lavatrice e asciugatrice celate dietro ante filo muro. L’impiantistica — dal riscaldamento alla climatizzazione, fino all’illuminazione — è stata integrata in modo discreto, preservando pulizia visiva e comfort abitativo.
🔧 Lavorazioni eseguite da DRD:
- Opere murarie interne e ottimizzazione spazi
- Realizzazione impianti elettrici, idrico-sanitari e climatizzazione
- Posa e rifinitura marmo di Carrara in ambienti giorno e bagno
- Posa parquet in rovere naturale spazzolato e trattato a olio
- Coordinamento e assistenza alla falegnameria per arredi su misura
- Installazione doccia emozionale con panca in nicchia
- Realizzazione vano lavanderia a scomparsa con ante filo muro
- Allineamento venature marmoree e cura dei dettagli di posa
DRD: trasformiamo spazi dimenticati in luoghi da vivere, con precisione, cura e attenzione a ogni dettaglio.
Mini Loft nel quartiere Appio – Roma
Il dettaglio costruttivo che dà forma alla visione progettuale
In questo intervento, DRD ha avuto il privilegio di collaborare alla realizzazione di un raffinato progetto di recupero abitativo, firmato da uno studio di architettura particolarmente attento alla qualità degli spazi e dei materiali.
L’obiettivo: trasformare un vecchio magazzino in un miniappartamento elegante e funzionale, con ambienti essenziali ma carichi di dettagli.
Il nostro compito: dare forma concreta a ogni soluzione ideata, con fedeltà progettuale e cura artigianale.
Abbiamo eseguito tutte le opere edili e impiantistiche con particolare attenzione:
- rivestimenti in marmo e posa del parquet con finiture invisibili;
- bagno su misura, con doccia integrata e nicchie a filo parete;
- integrazione impiantistica a scomparsa: elettrico, idraulico e condizionamento;
- coordinamento di falegnameria su disegno del progettista, per arredi a ponte e soluzioni integrate.
Ogni fase è stata seguita da DRD con rigore tecnico, capacità di problem solving e rispetto assoluto delle geometrie e delle finiture pensate dall’architetto.
Questa realizzazione testimonia una delle qualità che più ci distingue: la capacità di affiancare lo studio di progettazione, ascoltarne la visione e portarla a compimento con precisione, rispetto e passione.
🔧 Lavori eseguiti da DRD:
- Demolizioni e nuova distribuzione interna
- Impianti idrico-sanitari, elettrici e di condizionamento
- Posa pavimenti in parquet e rivestimenti in marmo Carrara
- Realizzazione bagno, doccia e nicchie a scomparsa
- Opere in cartongesso e illuminazione integrata
- Coordinamento esecutivo per falegnameria su misura
- Finiture, dettagli e assistenza direzione lavori
Ogni risultato di qualità è il frutto di una collaborazione consapevole, dove progettazione e realizzazione dialogano con lo stesso obiettivo: costruire bene.


Hai un progetto da realizzare?
Con DRD S.r.l. hai al tuo fianco un partner affidabile, che unisce la tradizione dell’edilizia alla precisione della gestione moderna.


































































