San Felice Circeo – Ristrutturazione appartamento 90 m²
Dal disegno alla realtà, senza perdere un dettaglio
Un appartamento di circa 90 metri quadri a San Felice Circeo, con una richiesta chiara: rispettare ogni linea del progetto e realizzare un’abitazione comoda, elegante e funzionale. Il disegno c’era. Serviva qualcuno che lo trasformasse in realtà, con ordine, metodo e competenza.
La DRD ha eseguito tutte le lavorazioni con attenzione certosina, restando fedele al progetto e risolvendo con prontezza le piccole variabili che ogni cantiere riserva.
Uno degli aspetti più impegnativi è stato l’impianto idraulico: l’appartamento originariamente aveva un solo bagno, in fondo a sinistra. Il progetto ne ha previsto la ricollocazione in posizione centrale, l’aggiunta di un secondo bagno e la creazione di una zona lavanderia con lavatrice e asciugatrice. La sfida? Far defluire correttamente gli scarichi, nonostante la colonna principale fosse a distanza considerevole.
Con un lavoro accurato di coordinamento tra DRD e il nostro idraulico di fiducia, tutto è stato realizzato alla perfezione. La prova è nel tempo: dopo mesi di utilizzo, i clienti confermano che non si è mai verificato il minimo problema.
Abbiamo poi realizzato i nuovi impianti elettrici, gestito la posa del parquet su massetto radiante, installato un sistema di climatizzazione canalizzato invisibile, e seguito passo dopo passo il montaggio degli arredi su misura in collaborazione con la falegnameria.
La scala d’ingresso? Completamente rivestita in marmo, elegante e ben proporzionata. Oggi si fa fotografare senza imbarazzo.
Ci sono dettagli che nei rendering non si vedono, ma che fanno la differenza quando l’opera prende vita. Sono quelli che ci impegniamo a rendere perfetti, perché alla fine sono proprio loro a dare carattere a una casa.
🔧 Lavorazioni eseguite da DRD:
- Opere murarie interne e compartimentazione
- Riorganizzazione impianto idraulico per nuova posizione bagni e lavanderia
- Impianto di riscaldamento a pavimento con massetto radiante
- Impianto idrico, sanitario ed elettrico
- Sistema di condizionamento canalizzato
- Posa parquet in rovere naturale, piallato a mano
- Coordinamento e assistenza alla falegnameria per arredi su misura
- Realizzazione scala esterna rivestita in marmo
- Installazione cucina a isola con mobile multifunzione integrato
- Controllo qualità e finiture in chiusura lavori
DRD: il valore di un progetto si vede nei dettagli. E noi ci assicuriamo che siano sempre all’altezza.
San Felice Circeo – Ristrutturazione appartamento 90 m²
Quando l’esecuzione è parte integrante del risultato finale
A San Felice Circeo ci siamo trovati di fronte a un progetto preciso, ben disegnato e ambizioso: trasformare un appartamento di 90 m² in una casa calda, elegante e funzionale, capace di accogliere ogni momento della vita quotidiana con equilibrio e bellezza.
Il disegno c’era. Le idee pure. Ma c’era bisogno di chi sapesse leggere tra le righe e rendere ogni linea una realtà concreta. E lì, con pazienza e cura, siamo arrivati noi.
“Quando ci hanno detto: Attenzione, il progetto è molto preciso, abbiamo risposto: Perfetto. Anche noi.”
Abbiamo eseguito l’intero intervento con attenzione artigianale: massetto radiante e parquet piallato a mano, canalizzazione invisibile per il condizionamento, posa accurata degli impianti, collaborazione meticolosa con la falegnameria per adattare ogni elemento su misura.
Ci sono cose che i rendering non raccontano:
la linea perfetta di una fuga, la pulizia di una canalina invisibile, la scala esterna in marmo che oggi si fa fotografare senza imbarazzo. Quelle cose che nei progetti non si vedono, ma si sentono quando le vivi.
“Certe volte sembrava di essere in un’aula universitaria: il professore (il progettista) spiegava, noi prendevamo appunti. Poi, però, ci mettevamo al lavoro. E lì, le regole diventavano realtà.”
🔧 Lavorazioni eseguite da DRD:
- Demolizioni, tramezzi e compartimentazioni
- Impianti elettrico, idrico-sanitario e riscaldamento a pavimento
- Climatizzazione canalizzata a scomparsa
- Posa parquet in rovere naturale piallato a mano
- Coordinamento e assistenza alla falegnameria per arredi su misura
- Cucina a isola con mobile multifunzione integrato
- Scala d’ingresso esterna completamente rivestita in marmo
- Supervisione generale e rifiniture finali
DRD: se il progetto ha stile, l’esecuzione non può essere da meno. E ogni tanto ci scappa anche un sorriso.
Ristrutturazione Appartamento – 90 mq, San Felice Circeo
Quando l’esecuzione è parte integrante del risultato finale
In questo intervento edilizio a San Felice Circeo, DRD ha eseguito tutte le opere previste dal progetto architettonico con elevati standard esecutivi e particolare attenzione alla precisione costruttiva, alla pulizia delle finiture e al coordinamento delle lavorazioni su misura.
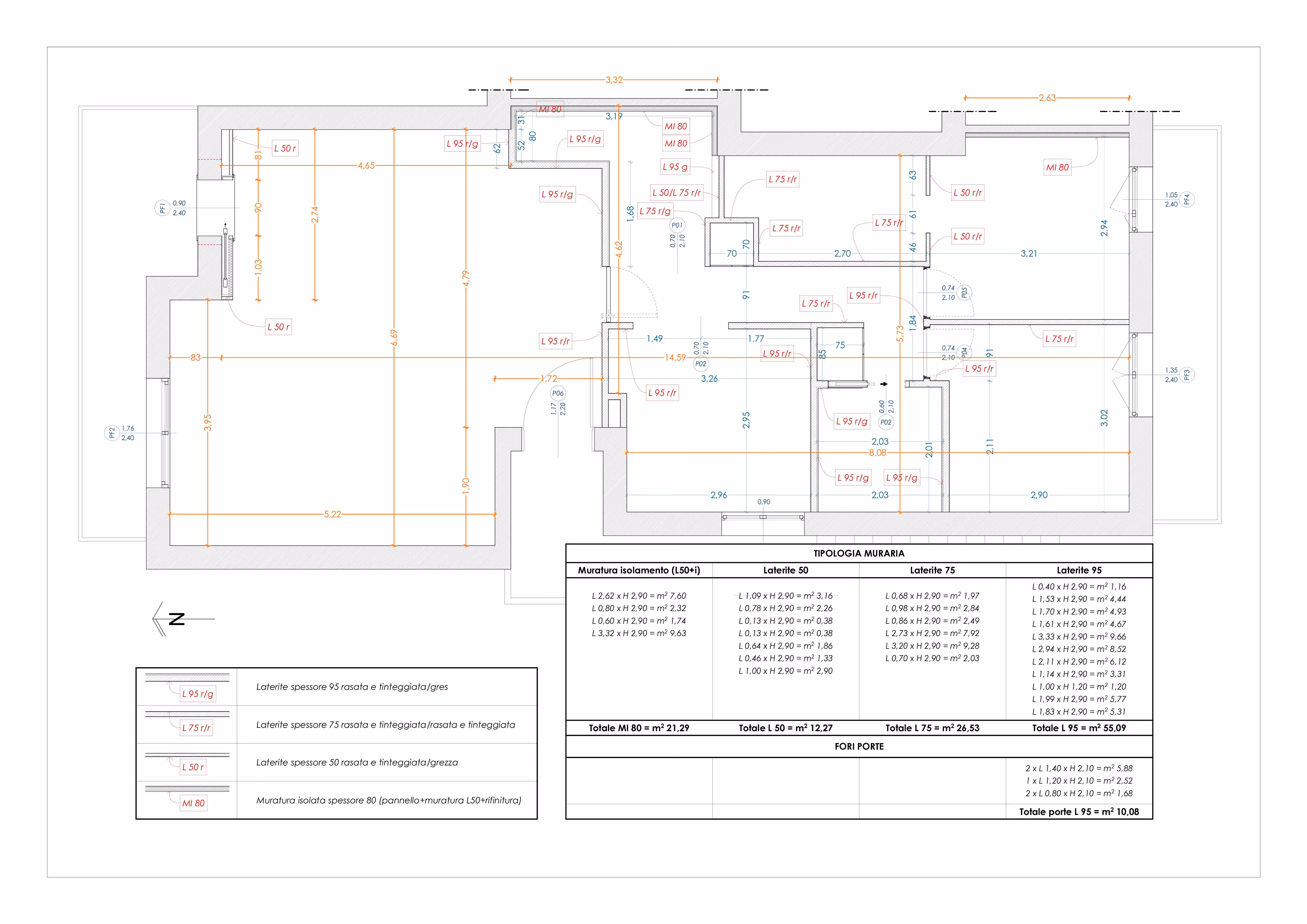
L’appartamento, con superficie di circa 90 m² e sviluppo longitudinale nord-sud, è stato completamente riconfigurato attraverso demolizioni interne e nuova compartimentazione muraria, al fine di realizzare:
- una zona giorno open space con cucina a isola integrata,
- tre camere da letto,
- due bagni,
- lavanderia e ripostiglio.
L’intervento ha previsto:
- posa di massetto radiante con impianto di riscaldamento a pavimento,
- realizzazione completa di impianti idrico-sanitari, elettrici, speciali e di climatizzazione canalizzata,
- installazione pavimenti in rovere naturale piallato a mano,
- lavorazioni murarie per l’inserimento di pareti attrezzate e nicchie funzionali,
- assistenza tecnica alla falegnameria per il corretto inserimento di armadiature, cucine e vani a scomparsa,
- predisposizione e installazione di corpi illuminanti incassati in continuità con le superfici architettoniche.
DRD ha inoltre realizzato una scala esterna di accesso all’appartamento, completamente rivestita in marmo, curandone la struttura, il rivestimento e il raccordo con il contesto edilizio esistente. L’intervento è stato eseguito con particolare attenzione alla stabilità, alla continuità visiva con le finiture interne e all’inserimento armonico nell’ambiente circostante.
Tutte le tolleranze di posa, gli allineamenti tra finiture, l’esecuzione dei dettagli su misura e la perfetta integrazione tra elementi tecnici e architettonici sono stati curati in cantiere direttamente da DRD, attraverso un costante confronto con la direzione lavori e la committenza.
Il risultato è un’abitazione caratterizzata da ambienti fluidi, finiture di pregio e una forte coerenza tra progetto e realizzazione, in cui ogni lavorazione ha richiesto massima precisione ed esperienza operativa.
🔧 Lavori eseguiti da DRD:
- Demolizioni e ricostruzione muraria
- Installazione impianto di riscaldamento a pavimento
- Impianti elettrici, idrico-sanitari e canalizzazione aria condizionata
- Posa parquet in rovere piallato a mano su massetto radiante
- Opere murarie per pareti attrezzate, nicchie e elementi integrati
- Coordinamento falegnameria e supporto tecnico all’installazione mobili su misura
- Montaggio cucina a isola integrata con continuità materica e funzionale
- Realizzazione scala esterna in marmo
- Finiture a regola d’arte, controlli di qualità in fase di chiusura lavori
DRD si distingue per la capacità di tradurre fedelmente i progetti architettonici in opere reali, coordinando con metodo ogni fase del cantiere, risolvendo le complessità esecutive e garantendo un risultato di alto profilo tecnico ed estetico.
Abbiamo rispettato la visione iniziale in ogni passaggio, ma ci abbiamo messo del nostro: dalla scala esterna in marmo (che oggi si fa fotografare senza imbarazzo), fino alla posa del parquet su massetto radiante, all’inserimento degli arredi su misura, con quel coordinamento certosino che richiede testa, orecchio e tanto polso.


Hai un progetto da realizzare?
Con DRD S.r.l. hai al tuo fianco un partner affidabile, che unisce la tradizione dell’edilizia alla precisione della gestione moderna.




































































