Ristrutturazione appartamento – Zona Talenti, Roma
Un nuovo equilibrio tra tecnica e design
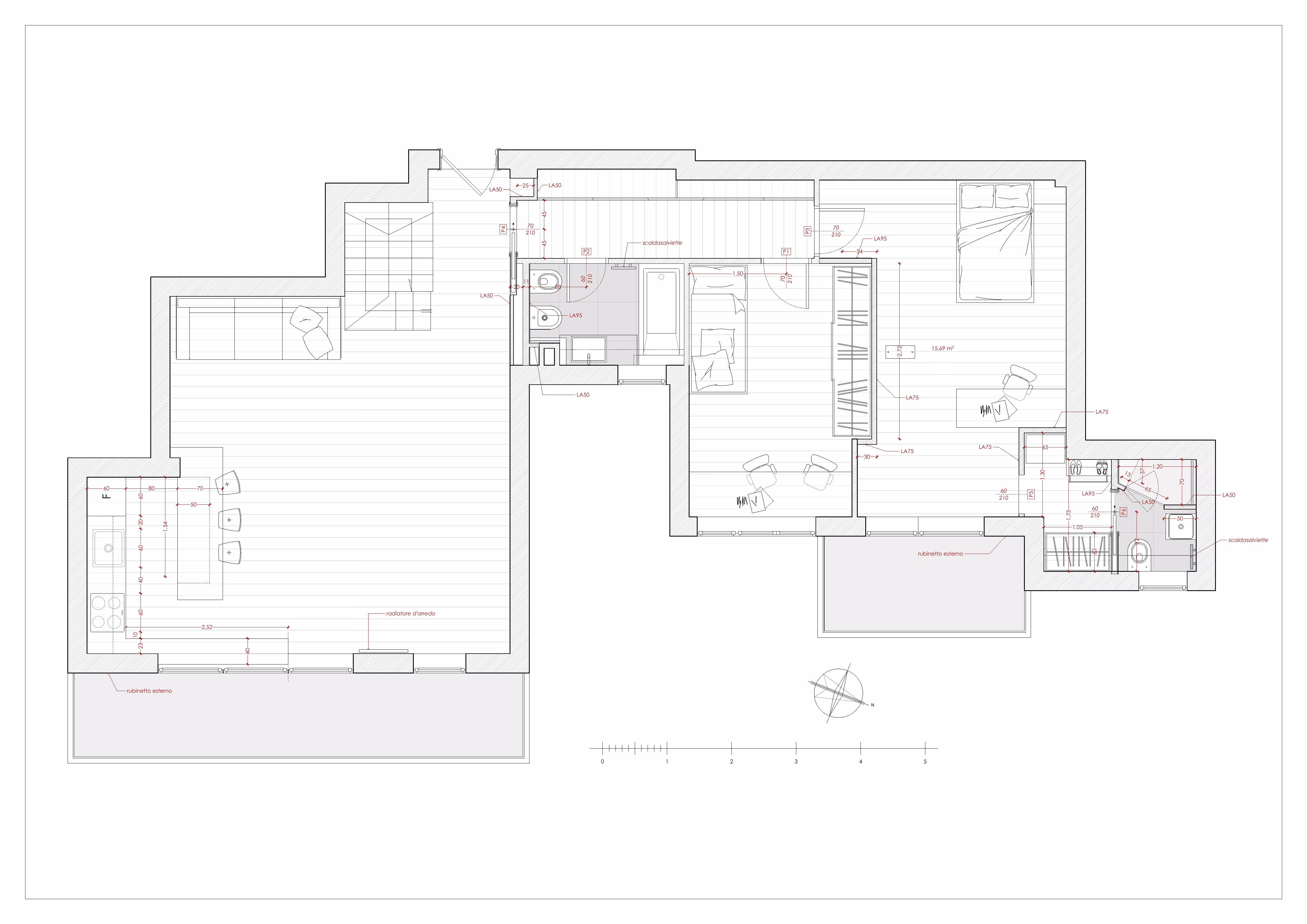
Intervento di ristrutturazione completa di un appartamento su due livelli, situato al sesto piano di uno stabile nel quartiere Talenti a Roma.
L’intervento ha interessato ogni aspetto dell’abitazione: dal rifacimento integrale degli impianti elettrici e idrico-sanitari alla redistribuzione degli spazi interni, fino alla posa delle nuove pavimentazioni in legno e delle finiture di pregio.
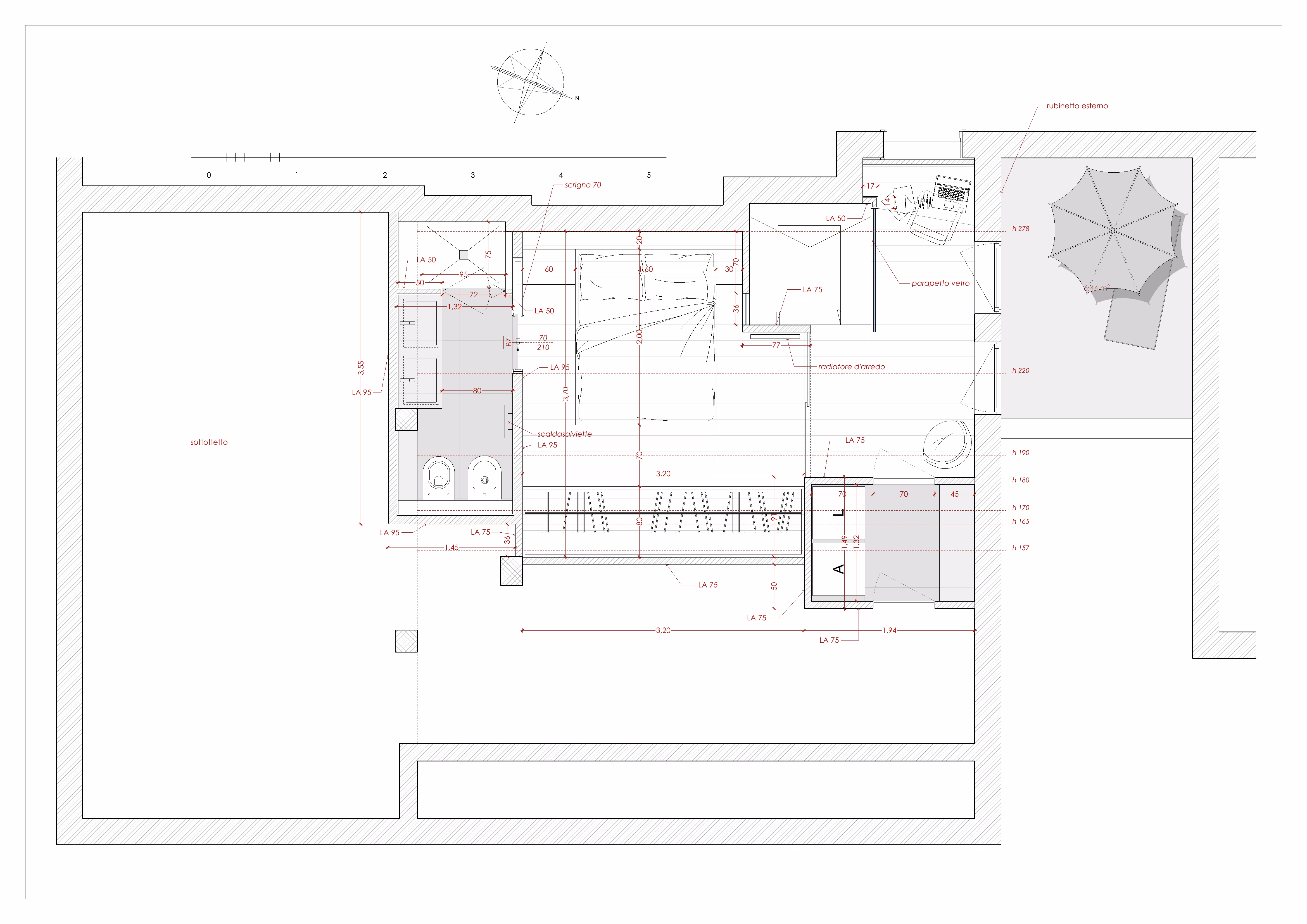
Al piano principale si sviluppano la zona living con cucina, due camere per i ragazzi e due bagni; al piano superiore trovano posto la camera matrimoniale, un disimpegno con angolo studio, un bagno con doppio lavabo e un ampio terrazzo.
Elemento architettonico di rilievo è la scala in ferro a giorno, progettata su misura e realizzata e montata dalla DRD, che collega i due livelli con eleganza strutturale e precisione costruttiva.
Un lavoro che rappresenta perfettamente la filosofia DRD: cura artigianale, rigore tecnico e armonia tra funzionalità ed estetica.


Hai un progetto da realizzare?
Con DRD S.r.l. hai al tuo fianco un partner affidabile, che unisce la tradizione dell’edilizia alla precisione della gestione moderna.







































































