Ristrutturazione appartamento – Roma, zona Monte Spaccato
Il progetto nasce da un sopralluogo durante il quale il cliente ci mostrò una proposta di ristrutturazione redatta da un geometra, con la nuova distribuzione degli spazi interni. Sin da subito, esprimemmo alcune perplessità: quella soluzione rischiava di non valorizzare l’immobile né l’investimento previsto. Con grande rispetto, suggerimmo al cliente di valutare il supporto di uno studio di progettazione capace di proporre una visione più coerente e raffinata.
Sembrava un consiglio rischioso, che avrebbe potuto compromettere l’affidamento della commessa. E invece, dopo alcuni mesi, ricevemmo una chiamata proprio dallo studio con cui all’epoca collaboravamo, incaricato dal cliente per un nuovo progetto. Riconoscemmo subito la planimetria: si trattava dello stesso appartamento. Poco dopo, il cliente ci affidò con entusiasmo la realizzazione dei lavori, ringraziandoci per l'onestà e la visione mostrata in fase preliminare.
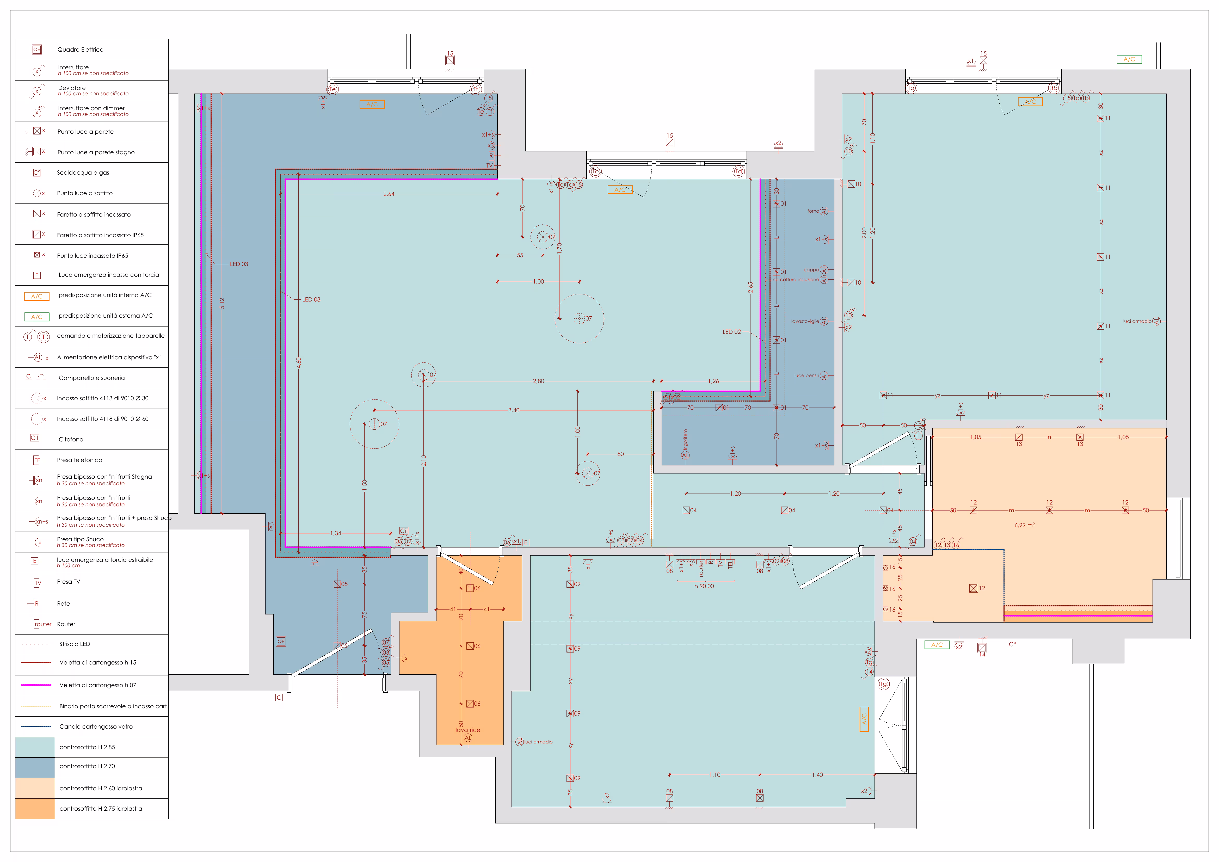
La ristrutturazione ha completamente trasformato l’immobile, restituendo spazi moderni e funzionali, un’illuminazione integrata nei controsoffitti e finiture contemporanee di alto livello. La soddisfazione del cliente è stata costante in ogni fase del cantiere, e continua ancora oggi con parole di apprezzamento per la qualità dell’intervento eseguito e del progetto complessivo.


Hai un progetto da realizzare?
Con DRD S.r.l. hai al tuo fianco un partner affidabile, che unisce la tradizione dell’edilizia alla precisione della gestione moderna.
























































































